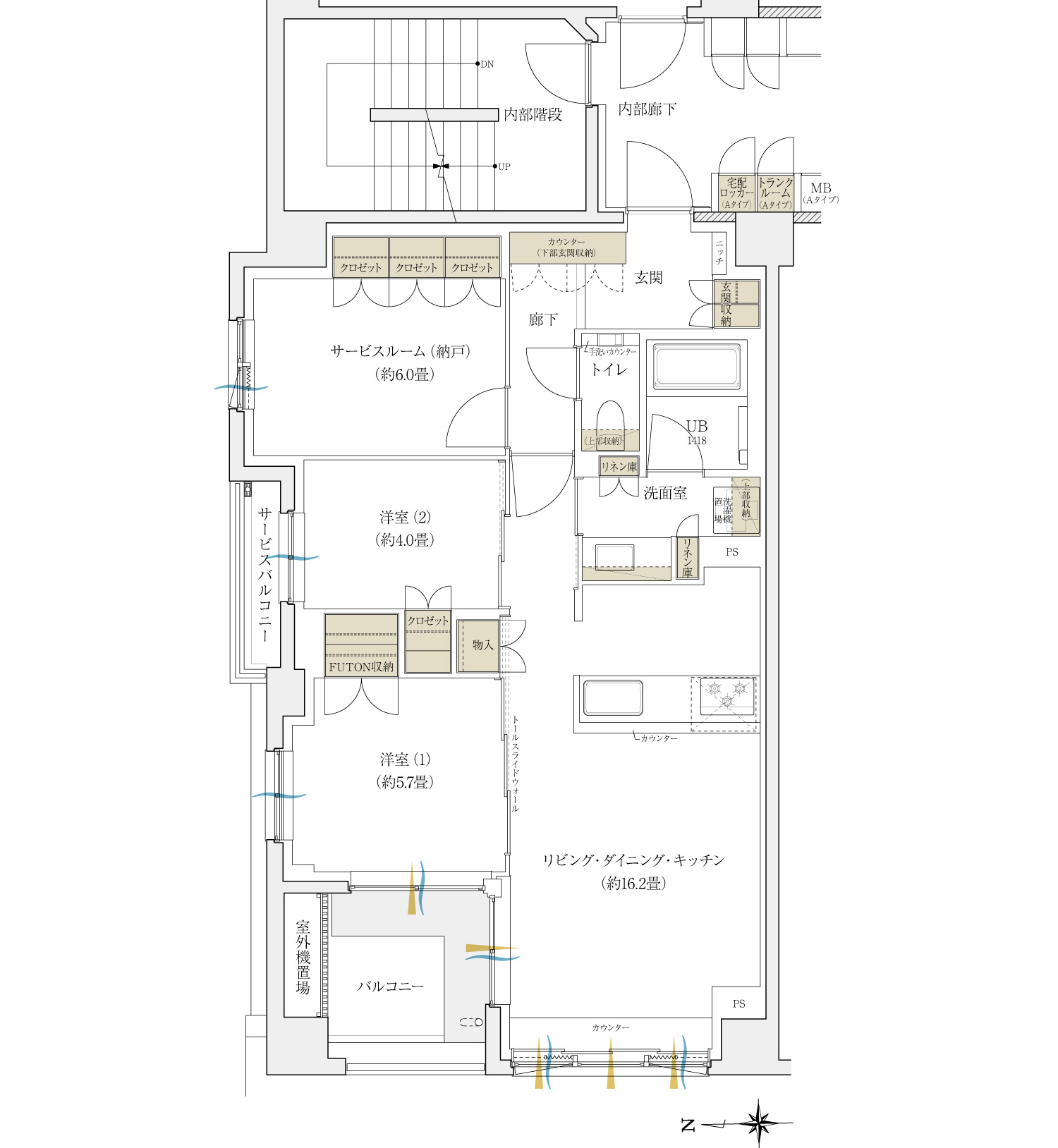
A type
75.55m²
(約22.85坪)
トランクルーム面積:0.31m²・
宅配ロッカー面積:0.31m²を含む
宅配ロッカー面積:0.31m²を含む
バルコニー面積:6.01m²(約1.81坪)
サービスバルコニー面積:1.97m²(約0.59坪)
室外機置場面積:1.56m²(約0.47坪)
2LDK+S(納戸)
先着順住戸・あと1邸
販売価格:14,990万円(税込)(2階)
全室:エアコン・照明付
洋室(1)・洋室(2)・サービスルーム(納戸):カーテン付

- :収納
- :通風
- :採光
- ※掲載の間取り図は図面を基に描き起こしたものであり、実際とは異なる場合があります。※窓ガラスの種類・種別については、各階平面図をご参照下さい。