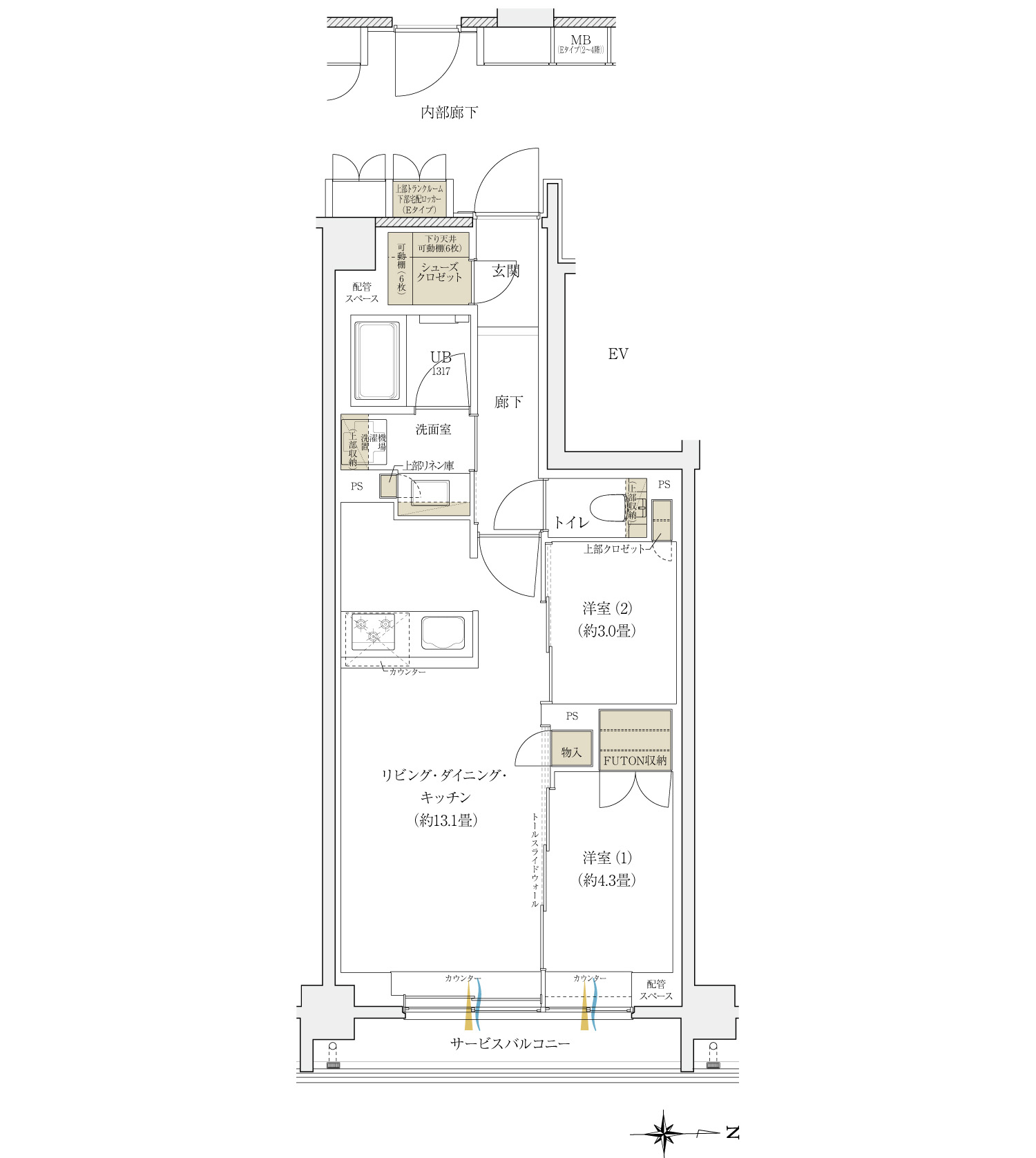
E type
51.17m²
(約15.47坪)
トランクルーム面積:0.51m²・
宅配ロッカー面積:0.51m²を含む
宅配ロッカー面積:0.51m²を含む
サービスバルコニー面積:4.87m²(約1.47坪)
2LDK+SC
先着順住戸・あと1邸

- :収納
- :通風
- :採光
- SC : シューズクロゼット
- ※掲載の間取り図は図面を基に描き起こしたものであり、実際とは異なる場合があります。※窓ガラスの種類・種別については、各階平面図をご参照下さい。